Nous présenterons les performances, les méthodes de fonctionnement sécurisées et les paramètres techniques de l'appareil de commutation moyenne tension KYN61-40.5
Modèle et signification
K Y N 61 - 40.5 / □ - □
Courant de court-circuit de rupture (KA)
- Courant nominal (A)
Voltage nominal (kV)
Numéro de série de design
- - - - - -
Type de suppression
- - - - - - -
Utiliser des conditions environnementales
La limite supérieure de la température ambiante est de 40 ° C, et la valeur moyenne mesurée dans les 24 heures ne dépasse pas 35 ° C.
Limite inférieure -15 °C:
Altitude : pas plus de 1000 mètres au-dessus du niveau de la mer ;
Humidité relative : moyenne quotidienne ne dépassant pas 95%, moyenne mensuelle ne dépassant pas 90% ;
Intensité du tremblement de terre : pas plus de 8 degrés
Pression de vapeur d'eau : la moyenne quotidienne ne dépasse pas 2,2 kPa, et la moyenne mensuelle ne dépasse pas 90 %.
Paramètres techniques
Principaux paramètres techniques de l'appareil de commutation sous vide
Numéro de série | Projet | Dimensions | paramètre |
1 | Tension évaluée | kV | 40.5 |
2 | Lianchang | A | 12501600 2000 |
3 | Fréquence évaluée | Hz | 50 |
4 | Noté pour résister à court terme courant | kA | 20 25 31.5 |
5 | Peak résiste au courant | kA | 50 63 80 |
6 | fréquence de puissance nominale résister à la tension | kV | 95 / 1 min |
7 | Choc de foudre résiste à la tension | kV | 185 |
8 | Durée du court-circuit | S | 4 |
9 | Niveau de protection | IP3X |
Principaux paramètres techniques du disjoncteur à vide
Numéro de série | Projet | Position de Weaving | paramètre |
1 | Tension évaluée | kV | 40.5 |
2 | Fréquence évaluée | Hz | 50 |
3 | fréquence de puissance nominale résister à la tension | kV | 95 / lmin |
4 | Choc de foudre résiste à la tension | kV | 185 |
5 | Courant évalué | A | 12501600 2000 |
6 | Noté pour résister à court terme courant | kA | 20 25 31.5 |
7 | Courant de rupture de court-circuit | KA | 20 25 31.5 |
8 | Peak résiste au courant | kA | 50 63 80 |
9 | Durée du court-circuit | MS | 4 |
10 | Temps d'ouverture | MS | 30 S 1 W 60 |
11 | Hélas temps | MS | 50 & t W] 00 |
12 | 88 Nombre de fois où le courant est interrompu dans un court-circuit fixe | Times | 20 |
13 | vie mécanique | Times | 10000 |
Les principaux paramètres techniques de la machine de fonctionnement à ressort
nom | Unité | valeur numérique | |
Tension évaluée d'opération | Split Coil | V | DC220 / 110 AC220 / 110 |
Fermeture des coils | |||
Courant d'exploitation nominal | Split Coil | A | O.96 (22OV) 1.O5I11OV) |
Fermeture des coils | |||
Moteur de stockage d'énergie | W | 230 | |
Moteur de stockage d'énergie Voltage nominal | V | DC220 / 110 AC220 / 110 | |
Temps de stockage d'énergie | S | w 12 |
Caractéristiques structurelles du Switchgear
L'appareil de commutation est conçu selon les normes GB3906 - 1991 et IEC298 pour l'appareil de commutation fermé en métal blindé. L'ensemble est composé de deux parties : l'armoire et la partie amovible (chariot à main). La structure de l'armoire est préfabriquée et boulonnée. La partie intérieure de l'appareil de commutation est divisée en une salle de disjoncteur, une salle de barres de bus principales, une salle de câbles et une salle d'instruments de relais avec une cloison métallique. Le niveau de protection du boîtier atteint IP3X, le niveau de protection entre chaque compartiment est IP2X, et toutes les pièces structurelles métalliques sont reliées à la terre de manière fiable, et chaque compartiment du système de circuit principal a un canal de décharge de pression d'échappement indépendant.
1. Enclosure et partition
La coque et la cloison de l'appareil de commutation sont boulonnés ensemble avec des tôles d'acier laminées à froid après avoir été traitées et pliées par des machines-outils CNC. Par conséquent, l'appareil de commutation assemblé peut garantir l'uniformité des dimensions structurelles. L'appareil de commutation est divisé en une salle de disjoncteur, une salle de barre de bus principale, une salle de câbles et une salle d'instruments de relais, et chaque partie est séparée par une cloison métallique mise à la terre.
2. Handcart
Les chariots à main peuvent être divisés en chariots à main disjoncteur, chariots à main transformateur de tension, chariots à main de comptage, chariots à main d'isolation, etc. selon l'objectif
Le chariot a une position d'essai / d'isolation et une position de travail dans l'armoire, et chaque position est équipée d'un dispositif d'articulation en argent pour s'assurer que le chariot ne peut pas être déplacé par hasard lorsqu 'il est dans les deux positions ci-dessus.
3. Compartiment de disjoncteur
Des pistes spécifiques sont installées à l'intérieur du compartiment de disjoncteur pour que le chariot à main puisse se déplacer. Lorsque le disjoncteur se déplace entre les positions de travail de la position d'essai, le volet d'isolation est automatiquement ouvert ou fermé, ce qui garantit que le personnel ne
Toucher le corps chargé. Le chariot à main peut être utilisé avec la porte de l'armoire fermée, et le chariot à main peut être vu dans l'armoire à travers la fenêtre de visualisation, ainsi que les signes de fonction sur le chariot à main.
4. Chambre Busbar
Le bus principal mène d'un appareil de commutation à l'autre au moyen d'une barre de bus de branche et d'une boîte de contact statique, qui est fixée avec un manchon de barre de bus lorsqu 'elle traverse les panneaux latéraux de l'armoire adjacente. Toutes les barres de bus sont isolées par un isolant composite.
5. Compartement câble
PT, commutateur de masse, arrête-surtension et câbles multiples peuvent être installés dans la salle de câblage.
6. Salle de relais
La plaque et le panneau de la chambre relais peuvent être installés avec des composants secondaires tels que la commande, les éléments de protection, la mesure, l'instrumentation d'affichage, l'indicateur de surveillance en direct, etc.
7. Dispositif interlock
L'appareil de commutation est doté d'un dispositif de verrouillage fiable pour assurer la sécurité des opérateurs et de l'équipement:
![]() | ![]() | ![]() |
| Promouvoir l'installation interlocking | KYN61-40.5 (Z) Cabinet de chariot blindé | Ground Switch |
Lorsque l'interrupteur de mise à la terre est en position ouverte, le chariot peut être déplacé de la position d'essai / isolation à la position de travail : et la porte arrière ne peut pas être ouverte, ce qui empêche d'entrer par erreur dans l'intervalle actif.
Lorsque le chariot à main est complètement retiré de l'armoire ou lorsque le chariot à main est mis à la terre dans la position d'essai / isolation dans l'armoire pour ouvrir le verrou et le déverrouillage, l'interrupteur de mise à la terre peut être fermé ; Lorsque le chariot à main est en position de travail, l'interrupteur de mise à la terre ne peut pas être fermé. Il empêche la déconnexion en direct de l'interrupteur de mise à la terre et empêche le chariot à mains multiples de se déplacer vers la position de travail lorsque l'interrupteur de mise à la terre est en position fermée.
Le chariot à main du disjoncteur ne peut faire fonctionner le disjoncteur que lorsqu 'il est en position d'essai / d'isolation ou en position de travail : et après que le disjoncteur est nommé, le chariot à main ne peut pas se déplacer, ce qui empêche la charge active de pousser et de tirer accidentellement le disjoncteur. Les verrouillages électriques peuvent être installés entre chaque armoire.
Grounding device
Dans la salle de câblage, il y a une barre de bus de mise à la terre séparée de 6x50mm2, qui peut traverser les armoires adjacentes et avoir un bon contact avec les armoires.
Principale schéma de câblage
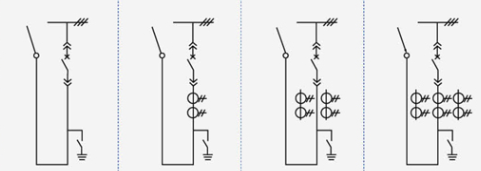
Il existe 27 schémas typiques couramment utilisés pour le schéma de câblage primaire de l'appareil de commutation, qui peuvent répondre aux besoins des utilisateurs pour les lignes d'entrée et de sortie de câbles, les lignes d'entrée et de sortie aériennes, le contact et la mesure, la protection, etc.
Numéro de schéma | 01 | 02 | 03 | 04 | |
Diagramme principal de câblage | ![]() | ||||
Principales équipements électriques | Courant évalué | 125,016,002,000 | |||
Nouveau pilote de circuit ZN85-40.5 | 1 | 1 | 1 | 1 | |
Transformateur de courant LDBJ8 (9) - 35 | 2 | ||||
Commutateur de mise à la terre IN22-40.5 / 31.5 | 1 | 1 | 1 | 1 | |
utilisation | Overhead hors | Overhead hors | Overhead hors | Overhead hors | |
Numéro de schéma | 05 | 06 | 07 | 08 | |
Diagramme principal de câblage | ![]() | ||||
Principales équipements électriques | Courant évalué | 125,016,002,000 | |||
Nouveau pilote de circuit ZN85-40.5 | 1 | 1 | 1 | 1 | |
Transformateur de courant LDBJ8 (9) - 35 | 2 | 3 | |||
Commutateur de mise à la terre IN22-40.5 / 31.5 | 1 | 1 | 1 | 1 | |
utilisation | Cable de sortie | Cable de sortie | Cable de sortie | Cable de sortie | |
Numéro de schéma | 09 | 10 | 11 | 12 | |
Diagramme principal de câblage | ![]() | ||||
Principales équipements électriques | Courant évalué | 125,016,002,000 | |||
Nouveau pilote de circuit ZN85-40.5 | 1 | 1 | 1 | 1 | |
Transformateur de courant LDBJ8 (9) - 35 | 1 | 2 | 3 | ||
utilisation | Contact gauche (droite) | Contact gauche (droite) | Contact gauche (droite) | Contact gauche (droite) | |
Numéro de schéma | 13 | 14 | 15 | 16 | |
Diagramme principal de câblage | ![]() | ||||
Principales équipements électriques | Courant évalué | 125,016,002,000 | |||
Nouveau pilote de circuit ZN85-40.5 | |||||
Transformateur de courant LDBJ8 (9) - 35 | 1 | 2 | 3 | ||
utilisation | contact | contact | contact | contact | |
Numéro de schéma | 17 | 18 | 19 | 20 | |
Diagramme principal de câblage | ![]() | ||||
Principales équipements électriques | Courant évalué | 125,016,002,000 | |||
Nouveau pilote de circuit ZN85-40.5 | 1 | 1 | 1 | 1 | |
Transformateur de courant LDBJ8 (9) - 35 | 1 | 2 | 3 | ||
utilisation | Le câble en | Le câble en | Le câble en | Le câble en | |
Numéro de schéma | 21 | 22 | 23 | 24 | |
Diagramme principal de câblage | ![]() | ||||
Principales équipements électriques | Courant évalué | 125,016,002,000 | |||
Nouveau pilote de circuit ZN85-40.5 | 1 | 1 | 1 | 1 | |
Transformateur de courant LDBJ8 (9) - 35 | 1 | 2 | 3 | ||
utilisation | Overhead en | Overhead en | Overhead en | Overhead en | |
Numéro de schéma | 25 | 26 | 27 | 28 | |
Diagramme principal de câblage | ![]() | ||||
Principales équipements électriques | Courant évalué | 125,016,002,000 | |||
Transformateur de tension LDX9 - 35 | |||||
Le fusible XPNP - 35 | 2 | 3 | 2 | ||
Arrête-surtension YH5WS - 51 / 134Q | 3 | ||||
| Transformateur SCB9 - 50 - 35 / 0.4 | 1 | ||||
utilisation | Transformateur de tension | Transformateur de tension | L'utilisation de la station change | ||
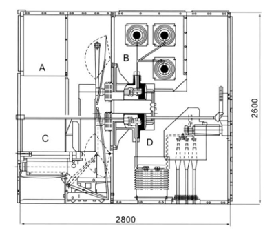
Dimensions et diagramme schématique de la structure de l'appareil de commutation
![]() | ![]() |
| Dimensions (WxDxH) : 1400x2800x2600 | Schéma schématique de la structure de l'appareil de commutation A salle des instruments de relais B salle des bus C salle des disjoncteurs D câble |
Installation de Switch Cabinet
1. Hauteur de la salle électrique : ≥ 4500mm:
2. Distance de l'arrière de l'armoire au mur : ≥ 1500mm ;
3. Planéité du cadre de fondation : ≤ 1mm / m ? ;
4. La partie de la fondation intégrée en acier du canal au-dessus du sol ne doit pas dépasser 3 mm ;
5. Il peut être fixé sur la fondation par boulonnage ou soudage:
6. Le poids de l'appareil est d'environ 1800Kg:
7. Largeur du couloir de fonctionnement de l'appareil de commutation (unique rangée) : ≥ 3000mm, double rangée (face à face) ≥ 4000mm.
Cohérence du produit
le numéro de schéma principal de la ligne secondaire, le schéma du système de bus unique, le schéma de disposition et le schéma de disposition ;
Schéma électrique du circuit secondaire et schéma d'arrangement des terminaux:
le modèle, la spécification et la quantité des composants électriques de l'appareil de commutation ;
Spécifications et matériaux des barres de bus principales et des barres de bus branchées:
Nom et quantité des pièces de rechange et des pièces de rechange:
Des exigences particulières sont convenues avec le fabricant.
En raison de l'amélioration continue de la technologie du produit, toutes les données doivent être confirmées par le dernier département technique de l'usine, et il y aura des changements sans préavis.
Commander des instructions
L'utilisateur doit fournir les informations techniques suivantes lors de la commande ::
Diagramme de schéma de câblage principal, but et diagramme du système à fil unique : tension nominale : courant nominal : courant de rupture de court-circuit nominale : diagramme de disposition de la salle de distribution et diagramme de configuration et de disposition des appareils de commutation, etc.
Indiquez les spécifications des câbles d'entrée et de sortie.
Exigences relatives aux fonctions de commande, de mesure et de protection des appareils de commutation et autres exigences relatives aux dispositifs de verrouillage et automatiques.
Le modèle, la spécification et la quantité des principaux composants électriques de l'appareil de commutation. Comme un changement entre eux ! ou l'armoire entrante doit être reliée par un pont de barres de bus, et des exigences spécifiques telles que la capacité nominale du pont de barres de bus et la portée du pont de barres de bus à partir de la hauteur du sol doivent être fournies.
Lorsque l'appareil de commutation est utilisé dans des environnements spéciaux, il doit être détaillé au moment de la commande.
Autres exigences particulières.
Diagramme schématique de l'installation de Switchgear

