Nous présenterons les performances, les méthodes de fonctionnement sécurisées et les paramètres techniques de l'appareil de commutation moyenne tension HXGN - 12
1. Portée d'utilisation

HXGN□-12 (FR) type boîte fixe AC métal fermé appareil de commutation (appelé « armoire réseau en anneau ») est un nouveau type de appareil de commutation conçu pour la rénovation et la construction des réseaux électriques urbains. Il est également utilisé comme courant de charge de rupture, courant de court-circuit et courant de plaque de fermeture dans le système d'alimentation électrique, et convient au système de distribution d'énergie AC 3 - 10KV, 50Hz. Il est largement utilisé dans les projets de construction et de rénovation des réseaux électriques urbains, les entreprises industrielles et minières, les immeubles de grande hauteur et les installations publiques, etc. En tant qu 'Unitéé d'alimentation électrique et d'équipement terminal de réseau en anneau, jouant le rôle de distribution d'énergie, de contrôle et de protection des équipements électriques, et peut également être installé dans les sous-stations pré - installées. Cette armoire de réseau en anneau est équipée d'un interrupteur de charge sous vide et d'un mécanisme de fonctionnement à ressort, qui peut être actionné manuellement ou électriquement. L'interrupteur de mise à la terre et l'interrupteur d'isolation sont équipés de mécanismes de fonctionnement manuel, et l'ensemble complet de cette armoire réseau annulaire est fort et petit. Il n'y a pas de risque de combustion et d'explosion, et il a une fonction de « prévention à cinq » fiable. Cette armoire de réseau en anneau est conforme aux dispositions pertinentes de GB3960 "3 ~ 35KV AC Metal Switchgear" et IEC60420 "High Voltage AC Load Switch-Futilisation Combination Appareils électriques" norme.
2. Le modèle et sa signification
HXGN□-12 (F.R.)
H : Réseau Ring
X : type de boîte
A : stationnaire
N : Intérieur
□ : Numéro de série de conception
12 : Voltage nominal
(F.R)Combinaison switch-futilisation de charge
3. Conditions normales d'utilisation
1. Température de l'air ambiant : -15. 40 ° C ;
2. Altitude : 1000m et inférieur ;
3. Conditions d'humidité : la moyenne quotidienne n'est pas supérieure à 95 %, la pression moyenne quotidienne de la vapeur d'eau n'est pas supérieure à 2,2 kPa, la moyenne mensuelle n'est pas supérieure à 90 %, et la pression moyenne mensuelle de la vapeur d'eau n'est pas supérieure à L 8 kPa ;
4. Intensité du tremblement de terre : pas plus de 8 degrés
5. Il n'y a pas de polluants évidents tels que les gaz corrosifs ou inflammables.
Remarque : Si les conditions normales d'utilisation ci-dessus sont dépassées, l'utilisateur peut négocier avec la Société.
4. Paramètres techniques principaux
Numéro de série | nom | Unité | D.onnées | |
1 | Tension évaluée | KV | 12 | |
2 | Courant évalué | Charger l'appareillage | A | 630 |
Combiné Switchgear | 125 | |||
3 | Courant de rupture de court-circuit | KA | 31.5 | |
4 | Current de rupture de charge active | A | 630 | |
5 | Noté pour résister à court terme courant | KA | 20 | |
6 | Peak résiste au courant | KA | 50 | |
7 | La fréquence de puissance nominale est évaluée pour résister à la tension interphasée, au sol/Break | KV | 42/48 | |
8 | Choc de foudre est résistant à la phase de tension, la masse/Break | KV | 75/85 | |
9 | vie mécanique | Times | 10000 | |
10 | Courant de remise nominal (appareils combinés) | A | 3150 | |
11 | Comment cela fonctionne | Manuel ou électrique | ||
12 | Niveau de protection | IP3X | ||
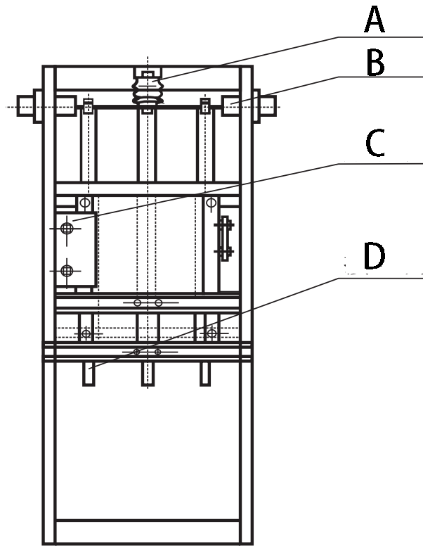
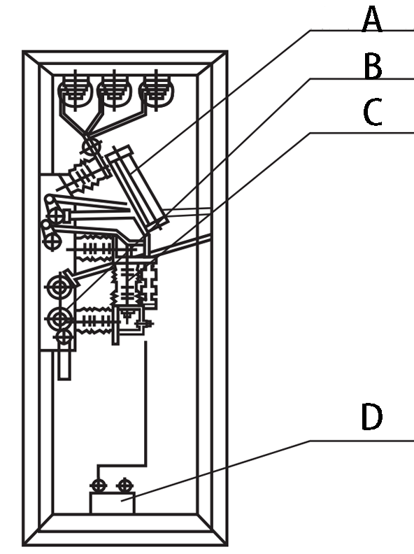
5. caractéristiques structurelles (as illustré dans la figure 2 et la figure 3)
1. Caractéristiques de performance structurelle
1.1.1 L'armoire réseau annulaire adopte un profil de 8MF, et l'ensemble du cadre est installé avec des trous de module B = 2 (tan.
L1.2 armoire réseau anneau est équipé d'interrupteur de charge FZN21 - 12D. ou de fusion FZRN21 - 12D. appareil électrique combiné, qui a un interrupteur d'isolement, un interrupteur de charge sous vide et un interrupteur de mise à la terre, et l'interrupteur de déconnexion et l'interrupteur de mise à la terre ont des ruptures évidentes.
1,3 L'interrupteur d'isolement, l'interrupteur de charge sous vide, l'interrupteur de mise à la terre et la porte de l'armoire ont des dispositifs de creutilisationment et de verrouillage parfaits et fiables, qui peuvent efficacement empêcher le mauvais fonctionnement et assurer un entretien sûr.
1.1.4 Il peut être actionné manuellement et électriquement.
1. La porte de l'armoire et la porte des instruments de l'armoire de mesure L5 sont équipées de broches d'étanchéité.
1.1.6 Armoire électrique combinée à fusible et tube de fusion avec broche de tir. En cas de court-circuit, la broche de déclenchement frappe le mécanisme de déclenchement pour obtenir une ouverture et une rupture rapides, ce qui peut protéger efficacement l'équipement électrique.
1.L 7 armoire en maillage annulaire adopte le fonctionnement frontal, l'installation murale fiable.
2. Fonction de verrouillage "Cinq prévention"
2. 2.1 Opération de transmission de pow : Ce n'est que lorsque la porte de l'armoire est fermée et verrouillée, et que l'interrupteur de masse est actionné en position "ouverte", que l'interrupteur de charge peut être actionné pour fermer la position.
2.2.2 Fonctionnement de panne de courant : Lorsque l'interrupteur de charge est en position d'isolation, l'interrupteur de mise à la terre peut être fermé, et lorsque l'interrupteur de mise à la terre est en position fermée, la cloison d'isolation est insérée en place pour ouvrir la porte de l'armoire.
2.1. 3 L'interrupteur à vide est relié de manière fiable au couteau d'isolation, et le couteau d'isolation et le couteau de mise à la terre sont reliés l'un à l'autre et reliés à la porte de l'armoire, et la cloison isolante est également reliée à la porte de l'armoire.
![]() | Figure 2 A : isolateur B : à travers le mur de l'enveloppe C : Mécanisme de fonctionnement D. : Grounding Switch |
![]() | Figure 3 A : Futilisation (porte de couteau d'isolation) B : Mécanisme de contrôle des balles C : Load Switch D. : Transformateur actuel |
6. Le principe de l'alimentation électrique du réseau ring
L'alimentation électrique du réseau en anneau < se compose de trois Unitéés de base (voir figure) Les armoires de ligne d'entrée et de sortie sont utilisées comme Unitéés de réseau en anneau, qui peuvent être isolées dans le temps en cas de défaut, et une autre Unitéé assure l'alimentation électrique continue de la branche du transformateur de l'utilisateur. L'armoire réseau de boucle utilisateur joue un rôle dans la protection et l'isolement du transformateur, ce qui est pratique pour l'entretien et la révision. L'armoire de réseau en anneau peut être étendue arbitrairement et peut être composée d'une variété de schémas de combinaison à partir d'Unitéés de base selon les exigences de l'utilisateur.
![]() | ||
| Cabinet de ligne d'entrée et de sortie de câble Cabinet de branche de transformateur utilisateur Cabinet de ligne d'entrée et de sortie de câble |
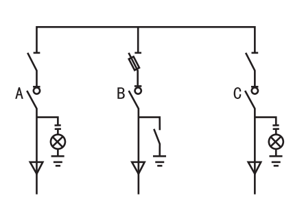
7. D.iagramme de circuit principal
Numéro de schéma | 01 | 02 | 03 | 04 | 05 | 06 |
D.iagramme de circuit principal | ![]() | |||||
utilisation | Câble dans et hors ligne | Câble dans et hors ligne | Câble dans et hors ligne | Câble dans et hors ligne | Câble dans et hors ligne | Câble dans et hors ligne |
Isolement/Appareils de charge / combinaison | GN□-12D. | GN□-12D. | GN□-12D. | FZN21 - 12D. | FZN21 - 12D. | FZN21 - 12D. |
Futilisation | RN3 | RN3 | ||||
Transformateurs actuels | LZZBJ9 | LZZBJ9 | ||||
Arresté | HY5W | |||||
Numéro de schéma | 07 | 08 | 09 | 10 | 11 | 12 |
D.iagramme de circuit principal | ![]() | |||||
utilisation | Câble dans et hors ligne | Câble dans et hors ligne | Câble dans et hors ligne | Câble dans et hors ligne | Câble dans et hors ligne | Câble dans et hors ligne |
Isolement/Appareils de charge / combinaison | FZN21 - 12D. | FZN21 - 12D. | FZN21 - 12D. | FZN21 - 12D. | FZN21 - 12D. | GN□-12D. |
Futilisation | RN2 | RN2 | RN2 | |||
Transformateurs actuels | LZZBJ9 | LZZBJ9 | LZZBJ9 | LZZBJ9 | ||
Transformateur de tension | JD.Z | JD.Z | JD.Z | |||
Arresté | HY5W | HY5W | HY5W | |||
Numéro de schéma | 13 | 14 | 15 | 16 | 17 | 18 |
D.iagramme de circuit principal | ![]() | |||||
utilisation | câble de comptage des lignes entrantes et sortantes | Câble dans et hors ligne | Câble dans et hors ligne | Câble dans et hors ligne | câble de comptage des lignes entrantes et sortantes | Outlet de câble entrant |
Isolement/Appareils de charge / combinaison | Le FZRN21 - 12 | FZRN21 - 12D. | FZRN21 - 12D. | FZRN21 - 12D. | GN□-12D. | |
Futilisation | RN2 | S□Le LAJ | S□Le LAJ | S□Le LAJ | RN2 | RN3 |
Transformateurs actuels | LZZBJ9 | LZZBJ9 | LZZBJ9 | LZZBJ9 | ||
Transformateur de tension | JD.Z | JD.Z | ||||
Numéro de schéma | 19 | 20 | 21 | 22 | 23 | 24 |
D.iagramme de circuit principal | ![]() | |||||
utilisation | Outlet de câble entrant | Outlet de câble entrant | Outlet de câble entrant | Outlet de câble entrant | Outlet de câble entrant | Outlet de câble entrant |
Isolement/Appareils de charge / combinaison | Le FZRN21 - 12D. | FZRN21 - 12D. | FZRN21 - 12D. | FZRN21 - 12D. | FZRN21 - 12D. | FZRN21 - 12D. |
Futilisation | S□Le LAJ | S□Le LAJ | S□Le LAJ | S□Le LAJ | ||
Transformateurs actuels | LZZBJ9 | LZZBJ9 | LZZBJ9 | LZZBJ9 | ||
Transformateur de tension | ||||||
Numéro de schéma | 25 | 26 | 27 | 28 | 29 | 30 |
D.iagramme de circuit principal | ![]() | |||||
utilisation | contact | contact | Mesure et liaison | Mesure et liaison | Contact ligne aérienne | Contact ligne aérienne |
Isolement/Appareils de charge / combinaison | Le FZRN21 - 12 | FZRN21 - 12D. | FZRN21 - 12D. | Le FZRN21 - 12 | ||
Futilisation | S□Le LAJ | RN2 | RN2 | S□Le LAJ | ||
Transformateurs actuels | LZZBJ9 | LZZBJ9 | ||||
Transformateur de tension | JD.Z | JD.Z | ||||
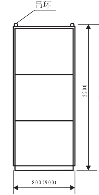
8. Forme et taille d'installation
1. La taille globale de l'armoire réseau de l'anneau
![]() | ![]() | D.irection du Cabinet Width |
| D.escription : La hauteur peut être sélectionnée | D.irection de profondeur Cabinet |
2. Taille d'installation de l'armoire réseau ring
![]() |
| Remarque : L'acier du canal doit être relié à la terre de manière fiable |
